
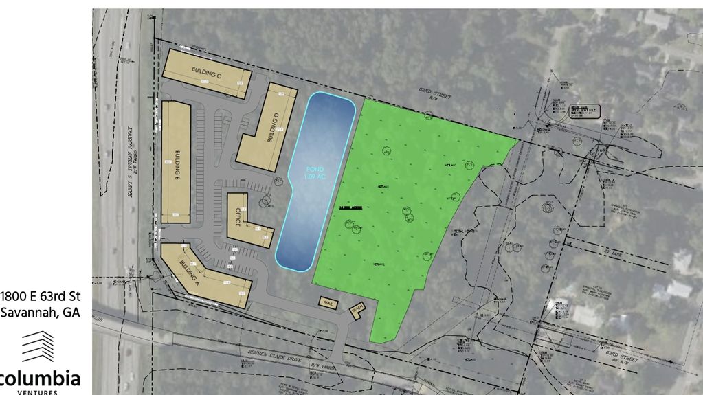
The current plan preserves a natural buffer between the apartments and the neighborhood by moving the development approximately 700 feet to the west, allowing the apartments to front the Tide to Town Trail.


Site plan showing drainage routes into the Casey Canal

We use cookies to analyze website traffic and optimize your website experience. By accepting our use of cookies, your data will be aggregated with all other user data.